Great Island Realty logo

Lot 2 Cedar TbdEliot, ME 03903Price: $1,095,000

  • Price: $1,095,000
  • Est. Mortgage of $/month
  • 17 Days on Market
$
$
%
$/month over payments
Federal 30-year interest rate: 6.22% last updated on Nov 6, 2025
* All Figures are estimates. Check with your bank or proposed mortgage company for actual interest rates.
This product uses the FRED® API but is not endorsed or certified by the Federal Reserve Bank of St. Louis.
  • $1,095,000List Price
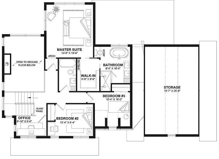
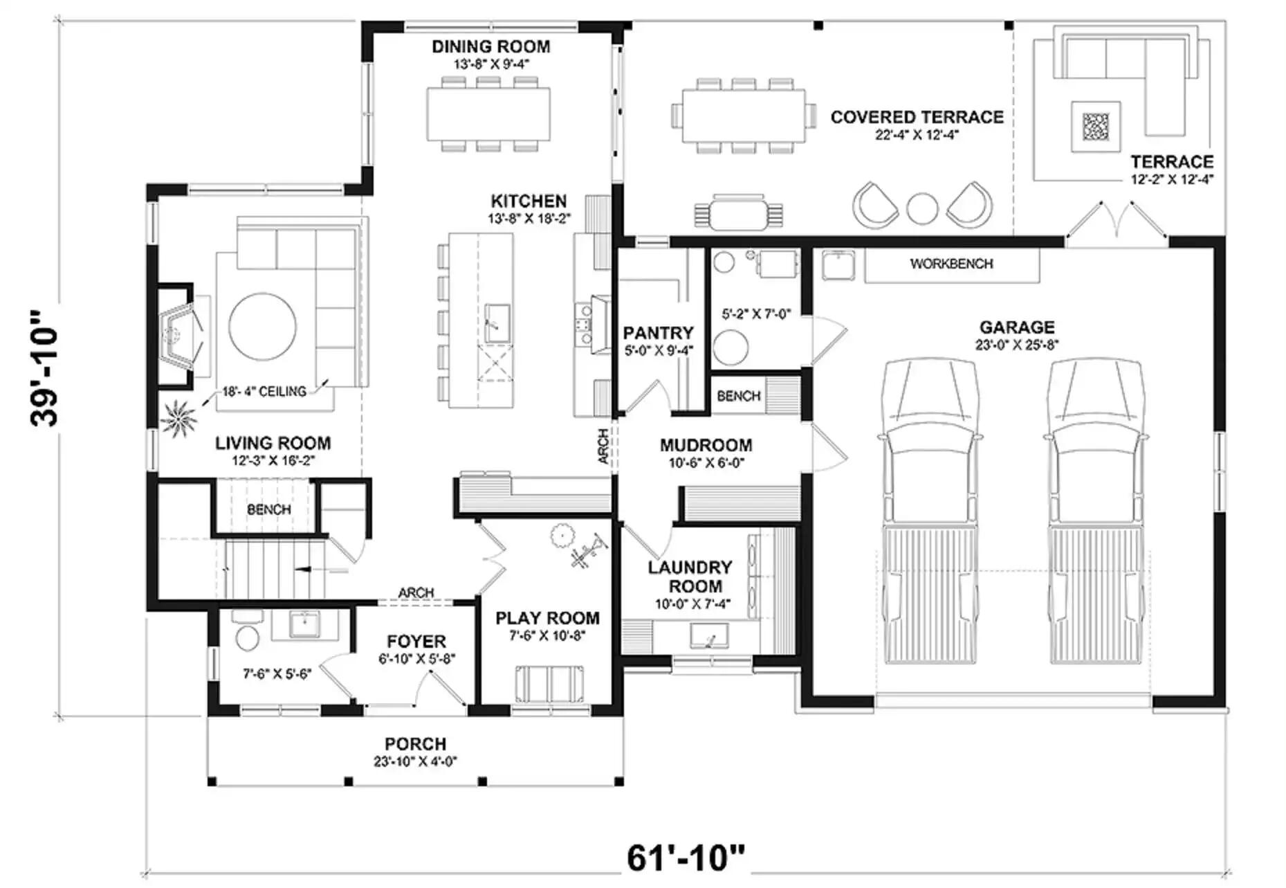
  • 3Bedrooms
  • 3Bathrooms
  • 3.68Acreage
  • 2,174Square Feet

Ask A Question

Listed by Travis Billingham of Portside Real Estate Group
Build this plan or bring your own! Welcome to Goodwin Estates, an exclusive opportunity in a private enclave of just 5 Estate Lots, all 3-4+ acres each. This exquisite plan is the Sophia and combines luxury design with high-quality construction, ready to be built to your tastes. Whether cooking, entertaining, or relaxing, it's easy to fall in love with this spacious kitchen. It opens to the living room with cathedral ceilings and a gas fireplace, and further opens up to a large covered terrace. The Bedrooms are spacious yet cozy with warm hardwood floors. Our location is unparalleled - the Town of Eliot offers an unparalleled lifestyle. Enjoy easy access to the public boat ramp on the Piscataqua River, explore miles of hiking trails, play a round at nearby golf courses, or spend a day at the iconic Seacoast beaches. All of this is just minutes from the vibrant culture and dining of Portsmouth, NH, and the charm of Kittery. Reach out today, or have your broker contact us to learn more about the reservation, customization, and construction process. Choose all your colors / finishes and design a home that is a true reflection of your style. All images advertised are for illustrative purposes only. Selections, allowances, finishes, and construction specifications are determined by the final construction contract. Some upgrades depicted here such as window selections, 2nd patio, etc. Road name approved by town already exists elsewhere, so the name will be changed. Use 76 Cedar for GPS

Listing Tools

Property Details of Lot 2 Cedar Tbd

Property Details

Interior Features

Exterior Features

Utilities and Appliances

Other Details

Map Location

Driving Directions

Listing data is derived in whole or in part from the Maine IDX & is for consumers' personal, non commercial use only. Dimensions are approximate and not guaranteed. All data should be independently verified. ©2025 Maine Real Estate Information System, Inc. All Rights Reserved. equal opportunity housing logo   Privacy Policy

Great Island Realty participates in ©2025 Maine Listings Internet Data Exchange program, allowing us to display other Maine IDX Participants' listings. This website does not display complete listings. Certain listings of other real estate brokerage firms have been excluded. Mortgage figures are estimates. Check with your bank or proposed mortgage company for actual interest rates. This product uses the FRED® API but is not endorsed or certified by the Federal Reserve Bank of St. Louis.

Hi there! How can we help you?

Contact us using the form below or give us a call.

Send Us A Message:

I agree to receive marketing and customer service calls and text messages from Great Island Realty. To opt out, you can reply 'stop' at any time or click the unsubscribe link in the emails. Consent is not a condition of purchase. Msg/data rates may apply. Msg frequency varies. Privacy Policy.

Do not fill in this field:

This site is protected by reCAPTCHA and the Google Privacy Policy and Terms of Service apply.

ExploreMore Like This